Trival Construction, spécialiste du design architectural et de l'aménagement intérieur de restaurants à Paris, en Île-de-France et à l'international, signe une nouvelle réalisation de prestige à Marrakech. Le projet NABAB, situé au cœur de la ville ocre, illustre notre savoir-faire en matière de design contemporain et d'optimisation d'espace pour la restauration haut de gamme.
Projet : Design restaurant NABAB Marrakech
Client : privé
Demande de Client : Design Moderne Restaurant
Adresse : Marrakech - Maroc
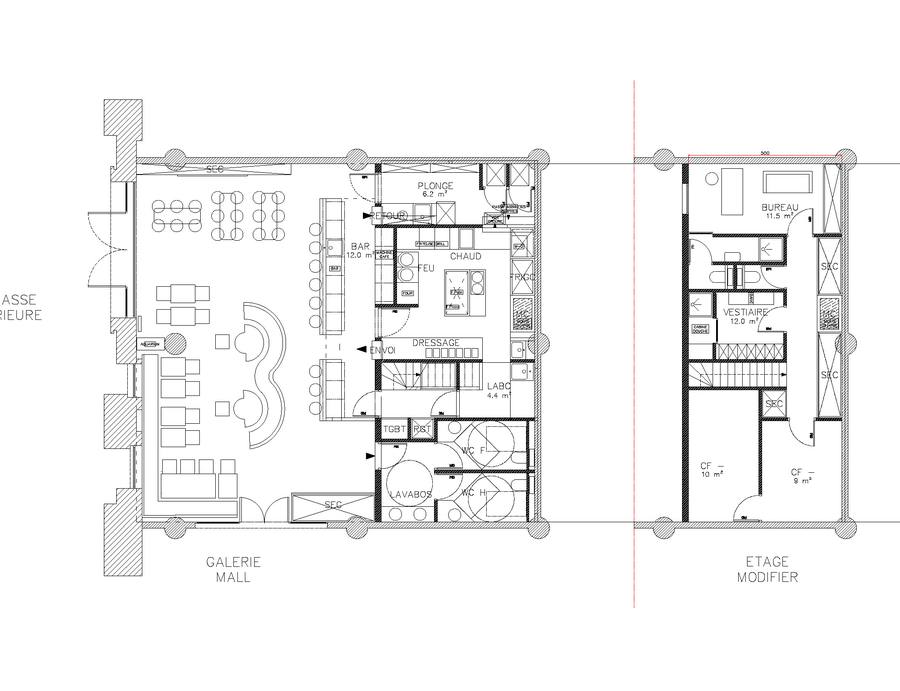
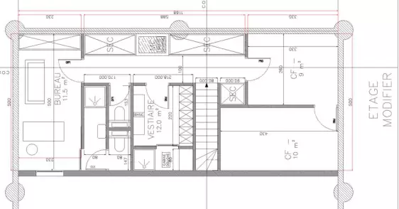
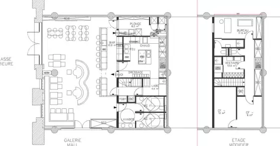
Surface : 250 m²
Infos : Etude et design
















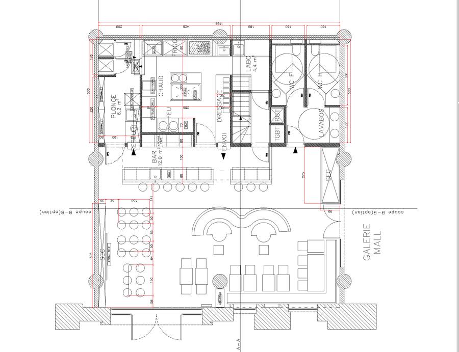
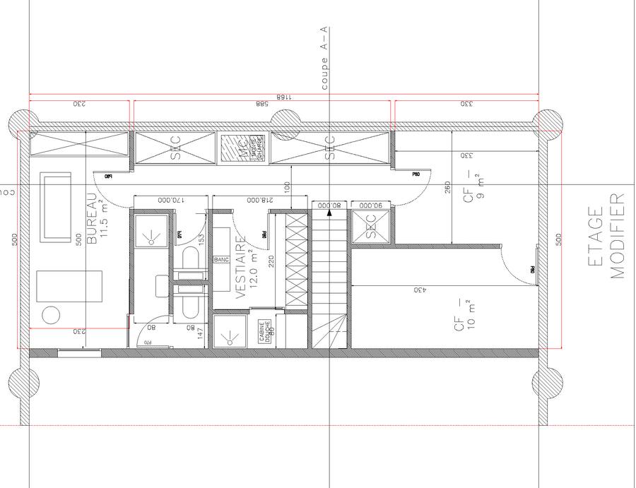
Le client privé nous a confié une mission complète de conception et design intérieur pour un restaurant de 250 m². L'objectif : offrir une ambiance à la fois chaleureuse, élégante et fonctionnelle, en accord avec les attentes d'une clientèle locale et touristique exigeante.
Nos équipes ont assuré :
En savoir plus sur notre prestation de design, architecture et aménagement
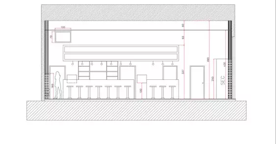
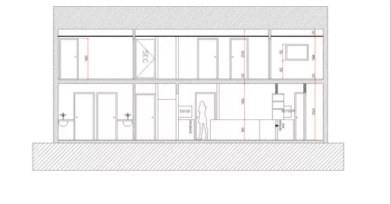
L'ambiance du restaurant NABAB repose sur un jeu de contrastes et de matières nobles :
Le tout est sublimé par des finitions soignées, un choix de matériaux durables et un éclairage maîtrisé, qui valorise chaque zone du restaurant à différents moments de la journée.
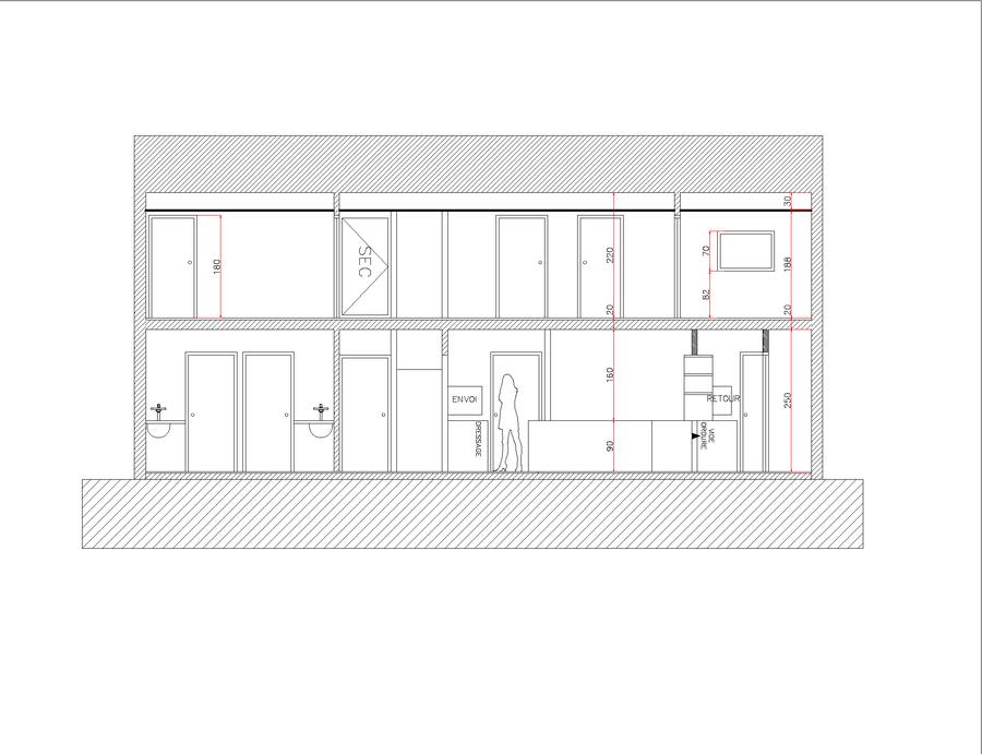
Trival Construction a également conçu une cuisine professionnelle parfaitement agencée, répondant aux normes d'hygiène et de fonctionnalité :
Chaque mètre carré a été étudié pour garantir fluidité, sécurité et efficacité en service.
Avec ce projet international à Marrakech, Trival Construction confirme son positionnement en tant que référence en design d'espace professionnel pour les restaurants, brasseries, bars et hôtels.
Notre approche : transformer votre concept en un lieu de vie qui respecte l'ADN de votre marque tout en séduisant vos clients.
Vous avez un projet de création ou rénovation de restaurant ?
Faites appel à Trival Construction, votre partenaire design à Paris, en Île-de-France et à l'international. Notre équipe vous accompagne de l'étude à la réalisation, avec une maîtrise complète des enjeux esthétiques, techniques et fonctionnels.
Contactez-nous pour concevoir votre restaurant à Marrakech, Paris ou ailleurs