Projet : Design Bureaux rue Saint Honoré – Paris 1er
Client : privé
Demande de Client : Design Bureaux toutes activités pour location
Adresse : 6ème et 7ème étage – rue Saint Honoré – 75001 Paris
Surface : 600 m²
Infos : Étude et design


















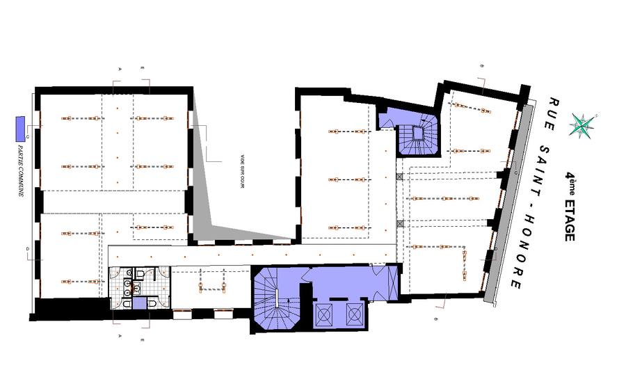
Vous recherchez un espace de bureaux modernes et fonctionnels à Paris 1er ? Le projet d'aménagement situé au 4e étage d'un immeuble rue Saint-Honoré représente une opportunité unique pour toute entreprise souhaitant conjuguer élégance, efficacité et localisation stratégique.
Un plateau de 400 m² pensé pour toutes les activités professionnelles
Conçu pour s'adapter à divers types d'activités, cet espace de bureaux propose un agencement flexible et lumineux. La configuration permet l'aménagement de postes de travail en open space, de bureaux fermés, de salles de réunion ainsi que de zones de détente. Chaque zone bénéficie d'un éclairage soigné, d'un revêtement de sol chaleureux en parquet bois clair et d'un système de ventilation adapté.
Notre approche a misé sur une palette neutre et des matériaux de qualité pour assurer un cadre à la fois professionnel et accueillant. Les cloisons vitrées permettent de cloisonner les espaces sans perdre en luminosité, tandis que les faux plafonds techniques accueillent discrètement les éléments de ventilation et les éclairages.
Une localisation stratégique en plein Paris
Situé à quelques pas du Louvre, ce plateau de bureaux bénéficie d'un environnement prestigieux et dynamique. Accessible par les transports en commun (métro et bus), il s'adresse aussi bien aux entreprises du tertiaire qu'aux professions libérales ou aux agences créatives souhaitant allier emplacement central et confort.
Spécialisés dans le design d'espaces professionnels à Paris, nous accompagnons les entreprises dans la transformation de leurs lieux de travail. Nos projets sont réalisés sur-mesure, avec une attention particulière portée à la circulation, à la lumière naturelle, à l'acoustique et aux normes ERP (accessibilité, sécurité, etc.).
Découvrez nos réalisations ou contactez-nous pour votre projet d'aménagement de bureaux à Paris.