












Trival Construction, expert en design architectural et aménagement d'espaces professionnels à Paris et en Île-de-France, dévoile sa dernière réalisation : la conception sur mesure de la terrasse du restaurant Le Balthazar, situé à Gonesse dans le Val-d'Oise.
Le restaurant Le Balthazar souhaitait transformer sa façade extérieure en un véritable atout esthétique et fonctionnel. Notre mission : concevoir un espace de terrasse design, accueillant et protégé, capable d'attirer les clients tout en s'intégrant parfaitement à l'identité du lieu.
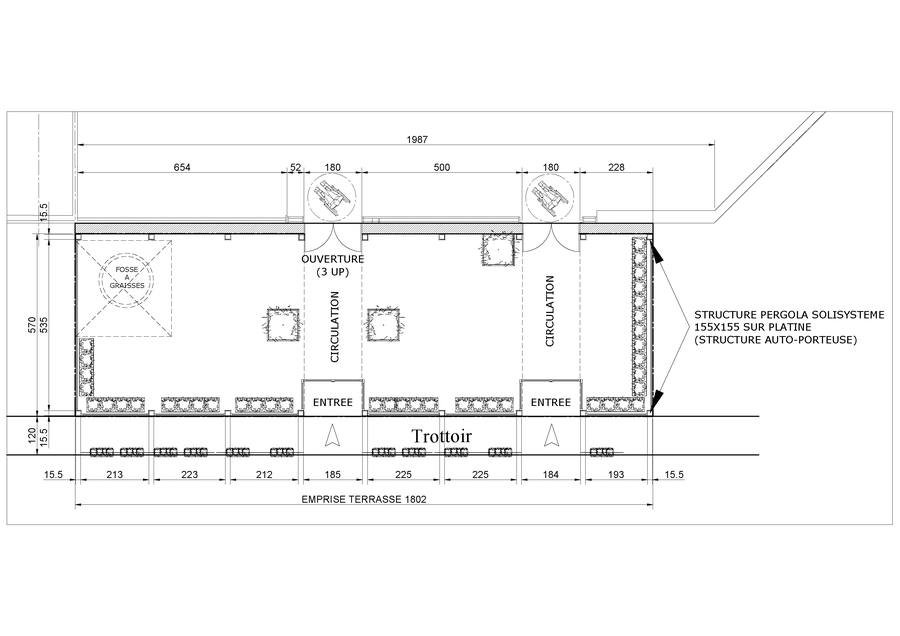
Nous avons réalisé :
L'espace extérieur couvre 100 m², intégralement aménagé pour offrir un cadre harmonieux et fonctionnel. La terrasse devient une véritable salle à ciel ouvert, pensée pour s'adapter à toutes les saisons :
Chaque détail a été pensé pour répondre aux attentes du client tout en respectant les normes d'urbanisme et les contraintes techniques du site.
Le savoir-faire Trival Construction : design, technique et accompagnement
Chez Trival Construction, chaque projet est unique. Nous accompagnons nos clients de la conception à la réalisation, en mettant à leur disposition notre expertise en :
Le projet du Balthazar illustre parfaitement notre capacité à valoriser une façade commerciale tout en créant une expérience client mémorable.
Vous souhaitez aménager la terrasse de votre restaurant en Île-de-France ?
Faites confiance à Trival Construction, votre partenaire en design et aménagement de terrasses professionnelles. Qu'il s'agisse d'un restaurant, d'un hôtel ou d'un café, nous concevons des solutions sur mesure qui allient esthétique, confort et durabilité.