Projet : Design restaurant THE PLACE
Client : privé
Demande de Client : Design Moderne Restaurant
Adresse : BONDY
Surface : 150 m²
Infos : Étude et design
Envie de rénover votre restaurant ? Contactez nos experts de la rénovation

















Créer un restaurant ne se résume pas à poser quelques tables dans une salle. C'est un projet global qui exige une réflexion approfondie sur l'espace, la lumière, la circulation, l'esthétique et le respect des normes. C'est dans cette logique que nous avons conçu le restaurant The Place, situé à Bondy (93). Notre mission : proposer un design moderne, ergonomique et attractif, en accompagnant le client de l'étude à la réalisation, avec un dossier complet comprenant plans 2D, vues 3D, aménagement intérieur et suivi technique.
Vous avez un projet ? Contactez nous
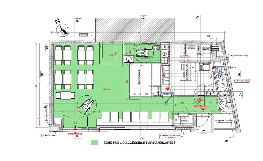
La salle principale du restaurant occupe une surface de plus de 42 m², permettant d'accueillir jusqu'à 62 personnes. L'espace est optimisé pour favoriser le confort des clients tout en respectant les règles de circulation, notamment celles liées à l'accessibilité handicapé.
Les matériaux choisis renforcent l'aspect chaleureux du lieu : parquet en bois clair, murs en briques apparentes, mobilier aux lignes sobres et fauteuils confortables en tissu beige. L'ambiance générale mise sur la lumière naturelle, avec une large baie vitrée offrant une excellente luminosité en journée.
Le comptoir du restaurant, conçu dans des tons sombres, joue un rôle central dans l'animation de la salle. Il permet de servir à la fois les clients attablés et ceux en position haute sur les tabourets. Les luminaires suspendus assurent une mise en valeur de la zone, tout en créant une atmosphère cosy en soirée.
Un espace de caisse a été intégré discrètement dans le prolongement du comptoir, permettant une gestion fluide des commandes et des paiements.
Une implantation rationnelle
La cuisine professionnelle, située à l'arrière, occupe une surface de 15,67 m². Elle est organisée en différents pôles : cuisson, préparation, dressage et lavage. L'ensemble du matériel est en inox pour garantir un respect strict des normes d'hygiène.
Chaque poste a été défini avec précision pour assurer une circulation efficace du personnel et éviter les croisements entre produits propres et sales. Une zone de plonge, un plan chaud, un espace pour la ventilation et un coin de stockage complètent l'équipement.
Besoin de rénover votre restaurant ? Faites appel à nos experts
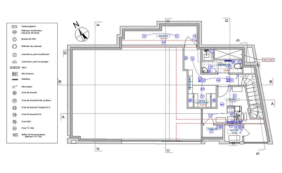
Nous avons fourni au client une série complète de plans techniques (architecture, électricité, accessibilité, aménagement intérieur) accompagnée de rendus 3D réalistes. Cette approche permet de valider chaque choix d'aménagement avant les travaux, en évitant les erreurs de conception.
La conception du restaurant à Bondy a intégré toutes les exigences réglementaires en matière d'accessibilité aux personnes à mobilité réduite (PMR).
Une zone publique de 42 m² est entièrement accessible en fauteuil roulant, avec un mobilier permettant un passage de 1,40 m entre les tables. L'accès à l'entrée, au comptoir et aux sanitaires se fait sans obstacle.
Le toilette PMR, d'une surface de 4,52 m², est équipé selon les normes : espace de rotation, lavabo accessible, barre d'appui, miroir inclinable. Les plans de coupe montrent clairement les hauteurs, dégagements et mobiliers adaptés à l'usage de toutes les clientèles.
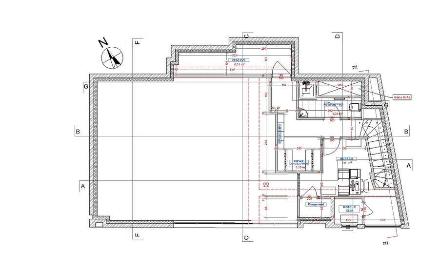
Au-dessus de la cuisine et des sanitaires se trouve une mezzanine à usage professionnel, d'environ 27 m², réservée au personnel du restaurant.
Cette mezzanine comprend :
Tout a été pensé pour séparer clairement les flux clients et personnels, dans un souci d'efficacité et d'hygiène.
Le design du restaurant The Place à Bondy est le fruit d'un travail rigoureux, qui allie créativité, respect des normes et sens du détail. Notre accompagnement a couvert toutes les étapes :
Lancer un restaurant en Seine-Saint-Denis implique de nombreuses contraintes : réglementation, circulation, sécurité incendie, efficacité des installations techniques. Travailler avec un architecte spécialisé en restauration vous permet :
Le projet The Place est aujourd'hui une référence locale en matière de design et d'optimisation d'espace. Grâce à son agencement intelligent, son ambiance chaleureuse et son respect des normes, il répond aux attentes des clients tout en offrant un environnement de travail agréable aux équipes.
Vous avez un projet de création ou de rénovation de restaurant à Bondy ou en Seine-Saint-Denis ?
Faites appel à un architecte spécialiste en aménagement intérieur de restaurants pour vous accompagner à chaque étape.
Découvrez nos autres services et travaux de rénovation : Entreprise de peinture Seine Saint Denis 93, Rénovation salle de bain Saint Denis 93, Rénovation Complète en Seine-Saint-Denis, Rénovation Complète Salle de Bain Saint-Denis, Rénovation de bureaux Seine Saint Denis La Courneuve